Servicios de Arquitectura

Sobre mí
SI NECESITAS REGULARIZAR TU VIVIENDA, REALIZAR UNA AMPLIACIÓN O DISEÑAR LA CASA DE TUS SUEÑOS Consulta por los servicios de: 📐Diseño de Viviendas (planos) 📐 Regularizaciones 📐 Evaluaciones de proyecto 📐Otros..
Identidad & Credenciales
Documento de identidad & RUT
Antecedentes verificados
Arquitecta - Universidad Andrés Bello

De Viña del Mar

1 empleado

4 años de experiencia

Imágenes & Videos

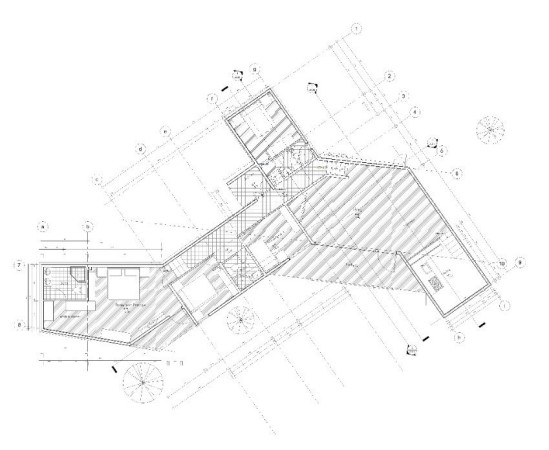
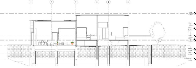
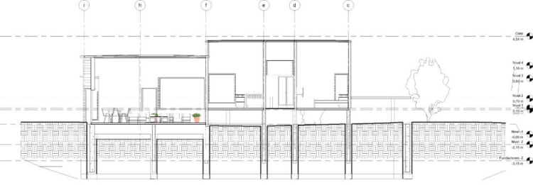
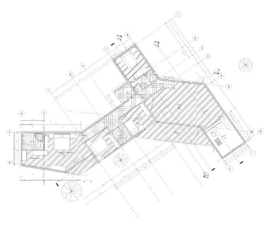
12 imágenes

Imagen 0 de servicio
Imagen 1 de servicio
Imagen 2 de servicio
Imagen 3 de servicio
Imagen 4 de servicio
Imagen 5 de servicio
Imagen 6 de servicio
Imagen 7 de servicio
Imagen 8 de servicio
Imagen 9 de servicio
Imagen 10 de servicio
Imagen 11 de servicio
1 / 12

Opiniones

Preguntas y Respuestas

¿Cuál es tu proceso típico para trabajar con un cliente?
Contacto con el cliente, reunión con el mismo, evaluación y asesoría acorde al encargo a realizar (proyecto), realización de presupuesto acordé a normativa y asesoramiento del profesional a cargo y realización del proyecto.
¿Qué educación o entrenamiento tienes con respecto al trabajo que realizas?
▪️Título de Arquitecta y Licenciatura en Arquitectura, Universidad Andrés Bello - Sede Campus Creativo, Viña del Mar. ▪️Práctica Profesional de Oficina, en oficial de Gestión Patrimonial de Valparaíso, Municipalidad de Valparaíso - Valparaíso. ▪️Participación (colaboradora) en Bienal de arquitectura. ▪️ Participación (colaboración, en años de estudio) Concurso CAP ▪️Gira de estudio, intercambio ciudad de Mendoza - Facultad de Arquitectura, Universidad de Mendoza, Argentina ▪️ Participación WORKSHOP (interescuelas de arquitectura) EULEN HAUSS, entre Campus, Viña del Mar y Santiago, Chile.
¿Tienes alguna forma estándar para cobrarle a los clientes, si es así, cuál?
Acepto efectivo, o Transferencia bancaria, acordé a los valores establecidos entre el cliente y la profesional a cargo.
¿Cómo empezaste a hacer este tipo de trabajo?
Ante la constante competencia entre arquitectos y motivaciones personales, empecé a trabajar en mi profesión, por el objetivo de crear espacios adecuados para mis clientes, de manera de crear una vivienda que se encuentre acordé a las necesidades de estos. Mi idea es establecer un diseño único, que me diferencie de otros profesionales, donde pueda mezclar la creación de espacios interiores, junto a la creación de espacios abiertos y naturales.
¿Con qué tipo de clientes has trabajado?
Con clientes que necesitan de diferentes servicios como: ▪️ Regularizar una vivienda existente ▪️ Realizar una ampliación a su vivienda ▪️La creación de un proyecto desde 0 acordé a sus necesidades. ▪️Evaluación de proyectos ▪️Firma de planos
¿Qué consejo le darías a un cliente que quiere contratar a alguien en tu área de trabajo?
Consultar de manera clara todas sus dudas, para poder analizar de manera objetiva y clara las diferentes propuestas que se presentarán para cumplir con las expectativas que el cliente posee. Además de estar dispuesto a llegar a un acuerdo con el profesional acorde a sus servicios.
¿Qué debería tener claro el cliente antes de contratar a un profesional como tú?
▪️Los presupuestos se realizan en base al metraje cuadrado de sus proyectos. ▪️Asegurarse de la autenticidad del título profesional que dice ostentar, buscando nombre o su RUT. ▪️Entender que cada proyecto a desarrollar se realizar en base a la ordenanza de la ley general de urbanismo y construcción. Rigiendose además en la información recabada a cada sitio a proyectar (diseñar).
¿No es lo que estas buscando?

No hay problema: tenemos a más profesionales.